

Kameralne bliźniaki wśród zieleni – 15 minut od centrum Siedlec
5 budynków w zabudowie bliźniaczej (10 lokali). Funkcjonalny układ, prywatne ogrody, balkony i nowoczesna architektura.
O inwestycji
Osiedle Wyględówka w Nowych Iganiach to harmonijne połączenie spokojnej lokalizacji i wygody dojazdu do miasta. Każdy lokal to przemyślany układ przestrzeni oraz wysoka jakość materiałów.
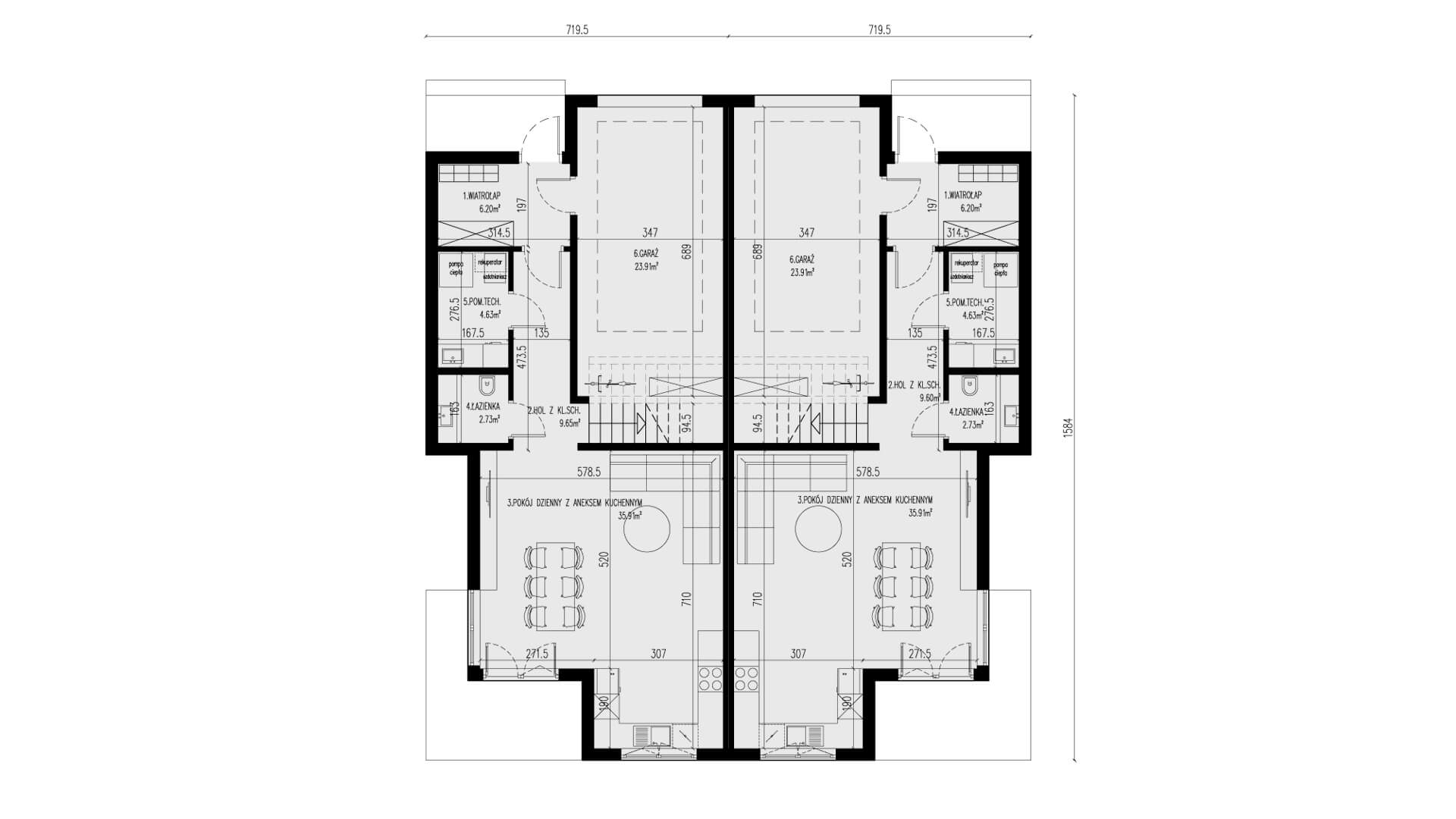
- Parter: wiatrołap, pomieszczenie techniczne, łazienka, salon z aneksem 35,91 m²
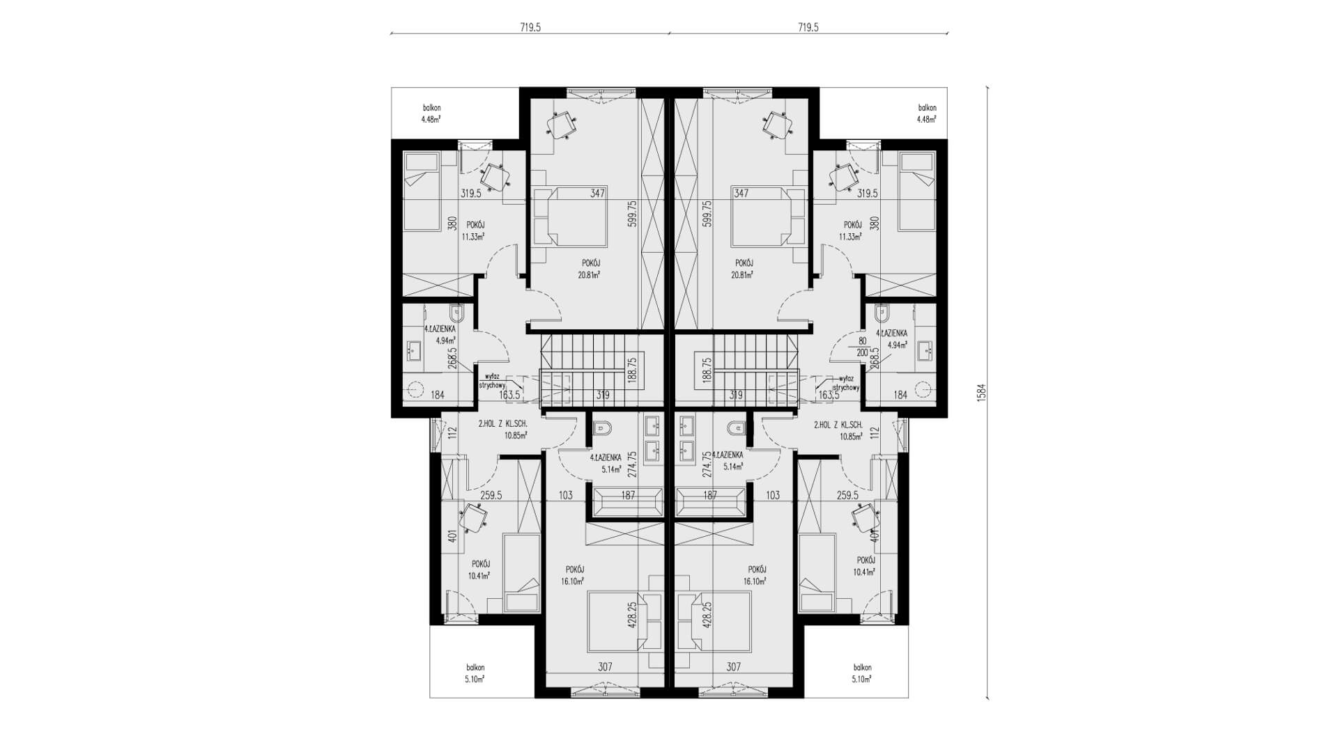
- Piętro: cztery pokoje, dwie łazienki (w tym jedna en‑suite)
- Prywatne ogrody i balkony, dużo światła, funkcjonalne układy
10 lokali
5 budynków w zabudowie bliźniaczej, nowoczesne bryły, duże przeszklenia.
Garaż 23,91 m²
Jednostanowiskowy garaż w bryle budynku oraz wygodny podjazd.
4 pokoje na piętrze
Ustawne sypialnie, miejsce na gabinet lub pokój dziecka.
2 łazienki
Na piętrze dwie łazienki, w tym prywatna w sypialni master bedroom.
Parametry lokali
Parter
Garaż – 23,91 m²
Wiatrołap
Pom. techniczne
Łazienka
Salon + aneks – 35,91 m²
Piętro
4 pokoje
2 łazienki
Master bedroom z prywatną łazienką
899,000zł
Układ domu






Galeria
Lokalizacja
Nowe Iganie, ul. Wyględówka – spokój natury i szybki dojazd do Siedlec (ok. 15 minut). W pobliżu szkoły, sklepy i punkty usługowe.
- Sklepy spożywcze – ~1–4 km
- Szkoła i przedszkole – ~1 km
- Węzeł A2 / DK – ~1–2 km
- Galerie i rozrywka w Siedlcach – ~4–7 km

















